首页 > 裝修案例 > 花砖的巧妙铺设,这个北欧风格酷劲十足

花砖的巧妙铺设,这个北欧风格酷劲十足

风格:原木风 面积:138m² 户型:3室 小区: 剑桥城
业主需求
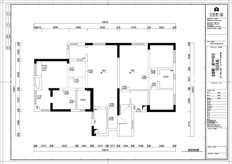
花砖的巧妙铺设,这个北欧风格酷劲十足-业主需求
此为原始结构图,业主是对年轻的夫妇,在设计上要求体现更为个性的追求。
平面布置图
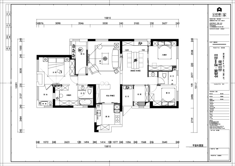
花砖的巧妙铺设,这个北欧风格酷劲十足-平面布置图
业主希望空间为开放性的,各个空间能够相互交流沟通,所以在户型上做了比较大的改变。
空间效果图
花砖的巧妙铺设,这个北欧风格酷劲十足-空间效果图 花砖的巧妙铺设,这个北欧风格酷劲十足-空间效果图
此为入户门厅,在风水上讲究“喜回旋忌直冲”所以把原来对户型直冲入户改为回旋入户,考虑到入户的采光所以用磨砂玻璃来做隔断,地面砖采用定制的手工花砖无规则铺贴,门口摆放装饰柜,由于考虑门口不仅需要美观还需要更多的储物空间,所以把储物放在侧面门厅的组合柜。
花砖的巧妙铺设,这个北欧风格酷劲十足-空间效果图
从门厅进入直接看到餐厅,餐厅和客厅做个半封闭的隔断处理,这样两个空间可以相互交流沟通无障碍。
花砖的巧妙铺设,这个北欧风格酷劲十足-空间效果图
客厅没有设计繁琐的背景墙,而是采用的借景及点线面的构图设计手法,在电视墙上留出玻璃隔断,让阳台的景色也能成为客厅的一部分,阳台窗户处可以摆上绿植,屋里就能感受到户外的景致,此为借景手法。
#  原木风  138m²  3室  效果图  #
162
不喜欢
猜你喜欢
关闭
按此效果装修多少钱?
电话咨询 在线咨询 算算我家报价
按此效果装修多少钱?
按此效果装修多少钱?
更多相似风格效果
按此效果装修多少钱?
更多相似风格效果
按此效果装修多少钱?
更多相似风格效果
按此效果装修多少钱?
更多相似风格效果
按此效果装修多少钱?