首页 > 裝修案例 > 湖晓兰庭240平米新中式装修实景图

湖晓兰庭240平米新中式装修实景图

风格:雅致新中 面积:240m² 户型:4室 小区: 金轮·湖晓兰庭
业主需求
湖晓兰庭240平米新中式装修实景图-业主需求 湖晓兰庭240平米新中式装修实景图-业主需求 湖晓兰庭240平米新中式装修实景图-业主需求 湖晓兰庭240平米新中式装修实景图-业主需求
希望家里为新中式风格,业主为退休老教师,平时喜欢看书写毛笔字,书香味文化底蕴比较深厚
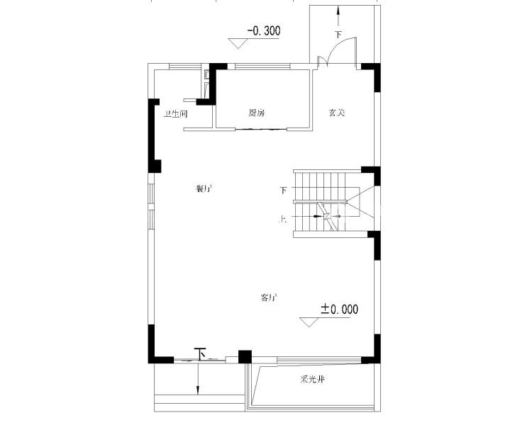
平面布置图
湖晓兰庭240平米新中式装修实景图-平面布置图 湖晓兰庭240平米新中式装修实景图-平面布置图 湖晓兰庭240平米新中式装修实景图-平面布置图 湖晓兰庭240平米新中式装修实景图-平面布置图
本案以米黄为主色调,相比那些冷色调的新中式,融入了一些温暖。功能上面地下室以及一层,为敞开的公共空间,招待宾客之用。楼上的两个前后阳台也充分的利用,舒适度升级。
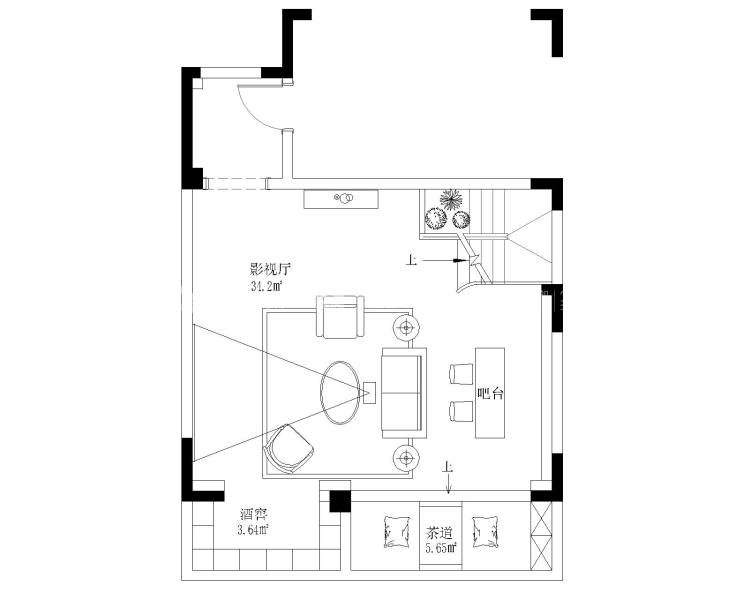
空间效果图
湖晓兰庭240平米新中式装修实景图-空间效果图 湖晓兰庭240平米新中式装修实景图-空间效果图 湖晓兰庭240平米新中式装修实景图-空间效果图 湖晓兰庭240平米新中式装修实景图-空间效果图
客厅整体选择比较素雅的色条,配上香槟金的金属点缀其中,软装上面整体也是运用的黑胡桃色配上饰品,整体感觉比较顺畅。
湖晓兰庭240平米新中式装修实景图-空间效果图 湖晓兰庭240平米新中式装修实景图-空间效果图
餐厅布置合理,使用舒适。效果不错!
湖晓兰庭240平米新中式装修实景图-空间效果图 湖晓兰庭240平米新中式装修实景图-空间效果图
主卧室:主卫背景带点祥云突然,家具黑檀木显得十分沉稳,飘窗也最大化的利用了空间,边上做了层板,放一些书籍。
湖晓兰庭240平米新中式装修实景图-空间效果图 湖晓兰庭240平米新中式装修实景图-空间效果图
次卧儿童房专为女孩布置,主要以粉色调为主,让整个房间看上去很有少女气息。
湖晓兰庭240平米新中式装修实景图-空间效果图 湖晓兰庭240平米新中式装修实景图-空间效果图 湖晓兰庭240平米新中式装修实景图-空间效果图 湖晓兰庭240平米新中式装修实景图-空间效果图
主卧室为套房设计,卫生间的淋浴坐浴,浴缸设施俱全
湖晓兰庭240平米新中式装修实景图-空间效果图 湖晓兰庭240平米新中式装修实景图-空间效果图 湖晓兰庭240平米新中式装修实景图-空间效果图 湖晓兰庭240平米新中式装修实景图-空间效果图
书房布置合理。功能性和舒适性都很强
#  雅致新中  240m²  4室  效果图  #
157
不喜欢
猜你喜欢
关闭
按此效果装修多少钱?
电话咨询 在线咨询 算算我家报价
按此效果装修多少钱?
按此效果装修多少钱?
按此效果装修多少钱?
按此效果装修多少钱?
按此效果装修多少钱?
按此效果装修多少钱?
按此效果装修多少钱?
按此效果装修多少钱?
更多相似风格效果
按此效果装修多少钱?
更多相似风格效果
按此效果装修多少钱?
更多相似风格效果
按此效果装修多少钱?
更多相似风格效果
按此效果装修多少钱?
更多相似风格效果
按此效果装修多少钱?
更多相似风格效果
按此效果装修多少钱?
更多相似风格效果
按此效果装修多少钱?
更多相似风格效果
按此效果装修多少钱?
更多相似风格效果
按此效果装修多少钱?
更多相似风格效果
按此效果装修多少钱?
更多相似风格效果
按此效果装修多少钱?
更多相似风格效果
按此效果装修多少钱?
更多相似风格效果
按此效果装修多少钱?
更多相似风格效果
按此效果装修多少钱?
更多相似风格效果
按此效果装修多少钱?
更多相似风格效果
按此效果装修多少钱?
更多相似风格效果
按此效果装修多少钱?
更多相似风格效果
按此效果装修多少钱?