首页 > 裝修案例 > 217平温莎城堡中式新装修

217平温莎城堡中式新装修

风格:雅致新中 面积:217m² 户型:4室 小区: 温莎城堡
业主需求
217平温莎城堡中式新装修-业主需求 217平温莎城堡中式新装修-业主需求
屋主热情好客,常约朋友来家里聚会Party,偏爱素雅的色调,不喜繁复的装饰,故而设计师定位为新中式风格,采用米灰色及胡桃色来奠定基础,通过创新的设计手法,优化空间,为整个空间增添了独特的魅力。
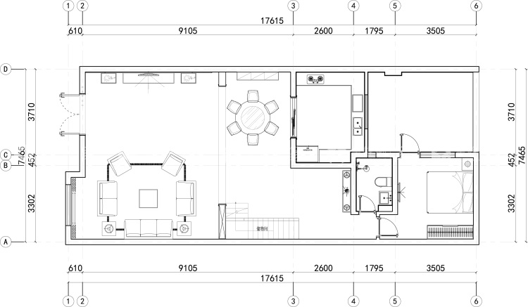
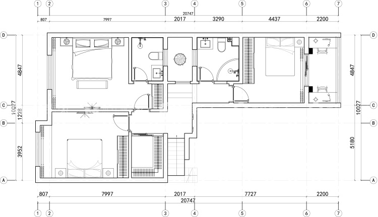
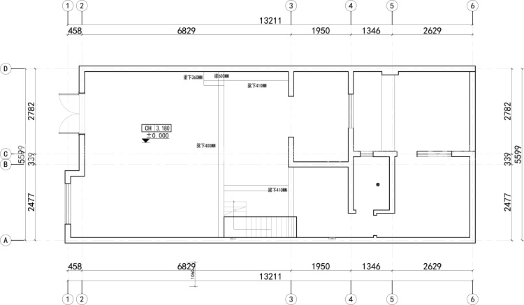
平面布置图
217平温莎城堡中式新装修-平面布置图 217平温莎城堡中式新装修-平面布置图
设计师发挥户型的最大优势尽量保证原建筑结构、提高空间利用率、在立面空间处理上保证了空间通透感,动线流畅、以及生态环保理念。
空间效果图
217平温莎城堡中式新装修-空间效果图 217平温莎城堡中式新装修-空间效果图 217平温莎城堡中式新装修-空间效果图
来到客厅,开放式设计,开阔视野的同时,也将空间最完美的状态保留了下来。两组沙发相对放置,简约的木色茶几,方便茶余饭后的交谈或与朋友的小聚。在中式山水画的映衬下,为室内注入了生活的韵味,整个空间看起来明亮又开阔。
217平温莎城堡中式新装修-空间效果图
考虑到客人较多,所以设计了八人位圆桌,满足业主家庭聚餐和客人接待的功能。
217平温莎城堡中式新装修-空间效果图 217平温莎城堡中式新装修-空间效果图 217平温莎城堡中式新装修-空间效果图
卧室延续整体色调,沉静典雅,简洁有力的设计语言,巧妙地构建了一个独具厚度的空间。营造出静谧安宁的睡眠环境,而窗外的绿植,也成为了室内最美好的点缀。
#  雅致新中  217m²  4室  效果图  #
195
不喜欢
猜你喜欢
关闭
按此效果装修多少钱?
电话咨询 在线咨询 算算我家报价
按此效果装修多少钱?
按此效果装修多少钱?
按此效果装修多少钱?
按此效果装修多少钱?
更多相似风格效果
按此效果装修多少钱?
更多相似风格效果
按此效果装修多少钱?
更多相似风格效果
按此效果装修多少钱?
更多相似风格效果
按此效果装修多少钱?
更多相似风格效果
按此效果装修多少钱?
更多相似风格效果
按此效果装修多少钱?
更多相似风格效果
按此效果装修多少钱?