首页 > 裝修案例 > 143平极简通透阳光四口之家

143平极简通透阳光四口之家

风格:现代极简 面积:143m² 户型: 小区: 吾悦和府
业主需求
143平极简通透阳光四口之家-业主需求
业主喜欢现代极简风格,追求简约通透、干净舒适,重视采光与收纳实用性,偏好低饱和度中性色调与利落线条。
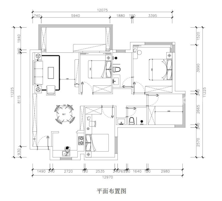
平面布置图
143平极简通透阳光四口之家-平面布置图
客餐厅一体化设计,延伸空间感,动线流畅。 无主灯照明,用筒灯+线性灯营造柔和均匀的光线。 嵌入式/悬浮式柜体,兼顾展示与储物需求。 功能分区清晰:客厅休闲、餐厨联动、卧室静谧。
空间效果图
143平极简通透阳光四口之家-空间效果图
现代极简风,黑白灰+木色为主调。 悬浮式电视背景墙+地柜,整洁又能储物。 大尺寸浅灰地砖通铺,搭配无主灯顶面,空间开阔通透。 深色皮质沙发+绿植软装,简约中透出温度。
143平极简通透阳光四口之家-空间效果图
餐厨一体,延续极简风格。 L型橱柜布局,操作方便,浅咖色柜门耐脏耐看。 圆形岩板餐桌+木质餐椅,柔和线条适配家庭日常。 大窗采光充足,嵌入式筒灯避免光线死角。
143平极简通透阳光四口之家-空间效果图
主打静谧舒适的睡眠空间。 纯白墙面+浅灰窗帘,视觉干净无干扰。 胡桃木床架+浅灰床品,温暖质朴。 飘窗+双层窗帘,兼顾采光与遮光,提升睡眠质量。
#  现代极简  143m²    效果图  #
159
不喜欢
猜你喜欢
关闭
按此效果装修多少钱?
电话咨询 在线咨询 算算我家报价
按此效果装修多少钱?
按此效果装修多少钱?
更多相似风格效果
按此效果装修多少钱?
更多相似风格效果
按此效果装修多少钱?
更多相似风格效果
按此效果装修多少钱?