首页 > 裝修案例 > 160平湖滨一号意式风格

160平湖滨一号意式风格

风格:其他 面积:160m² 户型: 小区: 湖滨一号
业主需求
160平湖滨一号意式风格-业主需求
本案业主希望打造舒适度与功能性兼具的居室空间,低调而不失高级感。
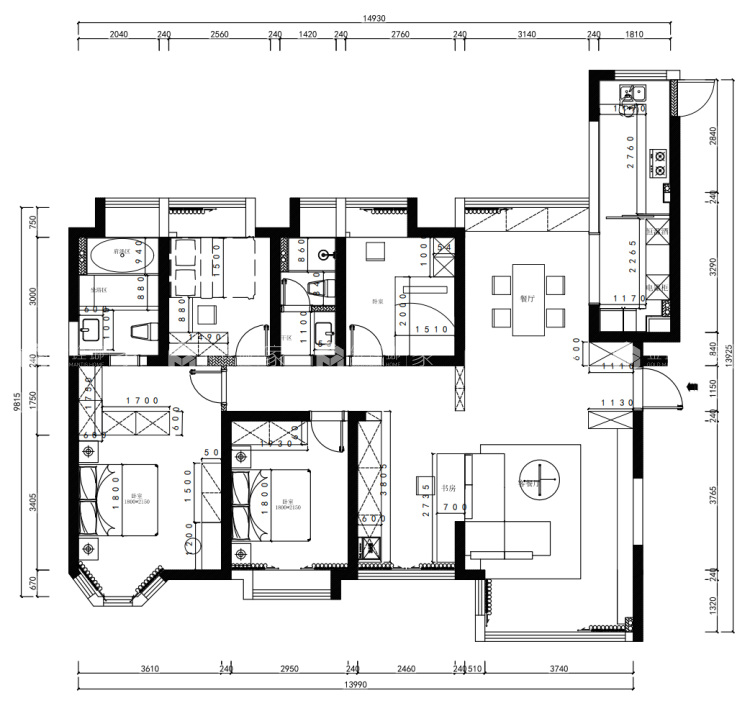
平面布置图
160平湖滨一号意式风格-平面布置图
本案在平面布局上,打通南北阳台,扩大了客餐厅空间,同时拆除与客厅相连的卧室,使原来直厅格局变为横厅,使整个空间更大气又不失功能区域。
空间效果图
160平湖滨一号意式风格-空间效果图 160平湖滨一号意式风格-空间效果图
本案为意式风格,全屋悬浮吊顶无主灯设计,电视背景柜采用悬浮+悬挑形式辅以氛围灯和岩板地台,配色低调内敛。沙发背景区域,黑白红的色块组合,更显高级感。
160平湖滨一号意式风格-空间效果图
餐厅延续客厅的风格,大面积黑色木纹饰面,通过绿色艺术画及浅色餐桌椅增加层次感。
160平湖滨一号意式风格-空间效果图 160平湖滨一号意式风格-空间效果图 160平湖滨一号意式风格-空间效果图 160平湖滨一号意式风格-空间效果图
160平湖滨一号意式风格-空间效果图
外卫
160平湖滨一号意式风格-空间效果图
衣帽间
#  其他  160m²    效果图  #
该案例设计师
金螳螂家装修设计师郭从文
郭从文
设计经验 10年以上
更多设计案例
172
不喜欢
猜你喜欢
关闭
按此效果装修多少钱?
电话咨询 在线咨询 算算我家报价
按此效果装修多少钱?
按此效果装修多少钱?
更多相似风格效果
按此效果装修多少钱?
更多相似风格效果
按此效果装修多少钱?
更多相似风格效果
按此效果装修多少钱?
更多相似风格效果
按此效果装修多少钱?
更多相似风格效果
按此效果装修多少钱?
更多相似风格效果
按此效果装修多少钱?
更多相似风格效果
按此效果装修多少钱?
更多相似风格效果
按此效果装修多少钱?
更多相似风格效果
按此效果装修多少钱?