首页 > 裝修案例 > 330平观澜豪庭意式轻奢

330平观澜豪庭意式轻奢

风格:现代轻奢 面积:330m² 户型: 小区: 观澜豪庭
业主需求
330平观澜豪庭意式轻奢-业主需求 330平观澜豪庭意式轻奢-业主需求 330平观澜豪庭意式轻奢-业主需求 330平观澜豪庭意式轻奢-业主需求
本案业主追求大气上档次的空间体验。并且有接待客户需求 ,以客厅作为核心区域,采用大挑空设计,使空间更开阔,满足高端商务接待的需求。
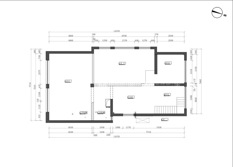
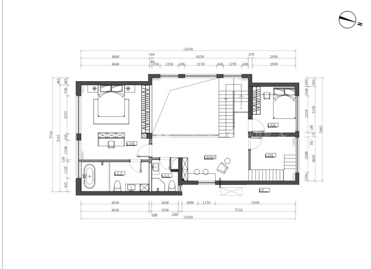
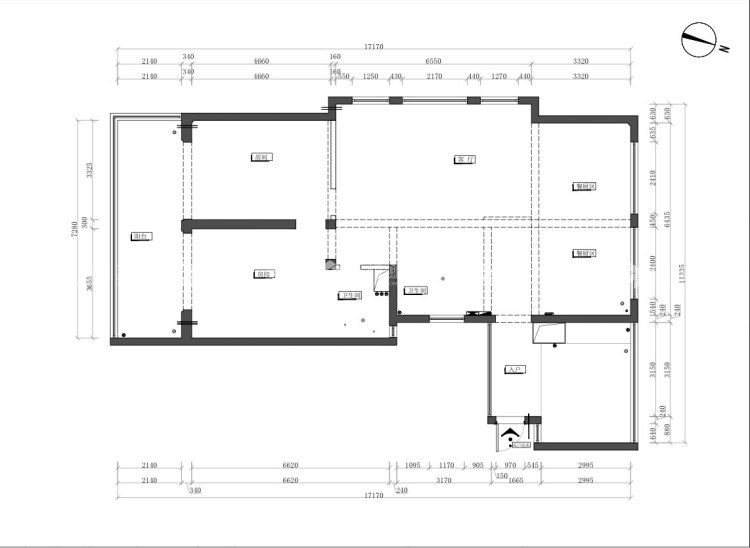
平面布置图
330平观澜豪庭意式轻奢-平面布置图 330平观澜豪庭意式轻奢-平面布置图 330平观澜豪庭意式轻奢-平面布置图
为满足业主高效的工作与高品质生活需求,一楼对空间功能进行了优化重组:将阳台并入主卧,规划出光线充沛的临窗办公区,让工作变得轻松高效。通过巧妙调整布局,缩减部分卫生间面积,为主人换取了一个梦寐以求的独立衣帽间。餐厨一体化设计,构成了开阔的家庭核心区,无论是家庭聚餐还是商务宴请都游刃有余。此外,特别在入户处设置茶室,实现了从入门一刻起,便能以茶会友,在雅致的气氛中接待访客。二楼规划以提升主卧舒适度与功能为导向。主卧内设隔断,实现了干湿分离的卫生间布局。同时,将一间次卧整合为独立书房,以满足专注学习与工作的需求。
空间效果图
330平观澜豪庭意式轻奢-空间效果图
客厅以悬浮感的艺术吊灯为视觉核心,搭配顶面的金色线条与大理石背景墙,让光线与材质相互呼应,既强化了“上档次”的质感,也让待客的氛围充满艺术感;
330平观澜豪庭意式轻奢-空间效果图
餐厨一体化设计,构成了开阔的家庭核心区,无论是家庭聚餐还是商务宴请都游刃有余。此外,特别在入户处设置茶室,实现了从入门一刻起,便能以茶会友,在雅致的气氛中接待访客。
330平观澜豪庭意式轻奢-空间效果图 330平观澜豪庭意式轻奢-空间效果图
卧室用木饰面的温润纹理搭配大理石挂画的质感,让空间既有沉稳的气场,又不会显得冰冷;基于业主对灯饰的喜爱,主卧精心挑选了一款造型别致的圆形艺术吊灯
#  现代轻奢  330m²    效果图  #
该案例设计师
金螳螂家装修设计师徐伟鸿
徐伟鸿
设计经验 10年以上
更多设计案例
147
不喜欢
猜你喜欢
关闭
按此效果装修多少钱?
电话咨询 在线咨询 算算我家报价
按此效果装修多少钱?
按此效果装修多少钱?
按此效果装修多少钱?
按此效果装修多少钱?
按此效果装修多少钱?
按此效果装修多少钱?
按此效果装修多少钱?
更多相似风格效果
按此效果装修多少钱?
更多相似风格效果
按此效果装修多少钱?
更多相似风格效果
按此效果装修多少钱?
更多相似风格效果
按此效果装修多少钱?