首页 > 裝修案例 > 180平香湖印月现代风格

180平香湖印月现代风格

风格:现代简约 面积:180m² 户型: 小区: 香湖印月
业主需求
180平香湖印月现代风格-业主需求 180平香湖印月现代风格-业主需求
本案所在的柯桥香湖印月小区作为“金昌曲线”系列的代表作,结合业主的设计意图,我们将外部环境的曲线美学融入内部人居空间,延续天人合一的哲学脉络,打造心灵居所。
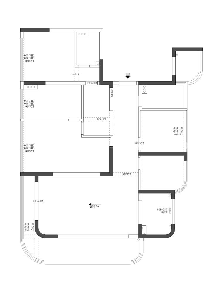
平面布置图
180平香湖印月现代风格-平面布置图 180平香湖印月现代风格-平面布置图 180平香湖印月现代风格-平面布置图
结合原结构入户正对东面落地窗,且入户至客厅动线较长,我们用曲线规避直冲,并用艺术长廊的设计手法,用感性化解理性......
空间效果图
180平香湖印月现代风格-空间效果图
客餐厅以及阳台除保留剪力墙全部打通,天花、墙体采用曲线、圆角处理弱化阻隔感,将空间融为一体,用生活构件来区分功能区域,打造简约的、无阻隔的空间以及生活理念。
180平香湖印月现代风格-空间效果图
客餐厅以及阳台除保留剪力墙全部打通,天花、墙体采用曲线、圆角处理弱化阻隔感,将空间融为一体,用生活构件来区分功能区域,打造简约的、无阻隔的空间以及生活理念。
180平香湖印月现代风格-空间效果图 180平香湖印月现代风格-空间效果图 180平香湖印月现代风格-空间效果图
卧室主要以奶白,棕色颜色为主,窗户设计的落地窗,引入充足自然光线,打造出温馨明亮的居住环境
#  现代简约  180m²    效果图  #
该案例设计师
金螳螂家装修设计师苏国艳
苏国艳
设计经验 15年以上
更多设计案例
116
不喜欢
猜你喜欢
关闭
按此效果装修多少钱?
电话咨询 在线咨询 算算我家报价
按此效果装修多少钱?
按此效果装修多少钱?
按此效果装修多少钱?
按此效果装修多少钱?
按此效果装修多少钱?
更多相似风格效果
按此效果装修多少钱?
更多相似风格效果
按此效果装修多少钱?
更多相似风格效果
按此效果装修多少钱?
更多相似风格效果
按此效果装修多少钱?
更多相似风格效果
按此效果装修多少钱?