首页 > 裝修案例 > 生活是一种态度~中古风

生活是一种态度~中古风

风格:其他 面积:130m² 户型: 小区: 君兰锦绣
业主需求
生活是一种态度~中古风-业主需求
业主一家三口,需要温馨舒适的家,小孩子目前不需要儿童房,需要书房
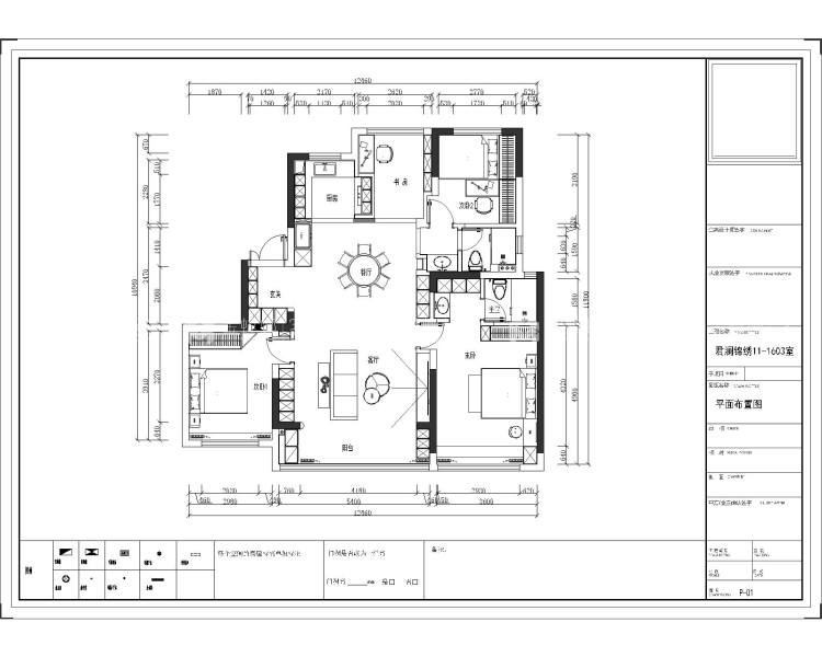
平面布置图
生活是一种态度~中古风-平面布置图
客餐厅于书房打通,增加空间感,使空间南北通透
空间效果图
生活是一种态度~中古风-空间效果图
背景墙用了石膏线装饰,定制柜采纳法式拱形元素,浪漫的法式氛围拉满~ 软装选的是黑色+棕色的搭配 客厅的咖色沙发让简单的客厅增添了一些复古高级感
生活是一种态度~中古风-空间效果图
使用半开放式厨房,多采用低饱和度、暖色调的色彩、姜黄、棕褐、米白等,通过色彩的搭配营造出温馨、沉稳且极具质感的空间氛围。
生活是一种态度~中古风-空间效果图
主卧使用浅色调,营造出静谧而放松的空间氛围,天花板采用独特的回字圆弧吊顶造型,层层递进,极大地增强了空间的立体感与层次感;
#  其他  130m²    效果图  #
该案例设计师
金螳螂家装修设计师陶钢良
陶钢良
设计经验 10年以上
更多设计案例
182
不喜欢
猜你喜欢
关闭
按此效果装修多少钱?
电话咨询 在线咨询 算算我家报价
按此效果装修多少钱?
按此效果装修多少钱?
更多相似风格效果
按此效果装修多少钱?
更多相似风格效果
按此效果装修多少钱?
更多相似风格效果
按此效果装修多少钱?