首页 > 裝修案例 > 116平七里香都轻法中古风

116平七里香都轻法中古风

风格:其他 面积:116m² 户型: 小区: 七里香都
业主需求
116平七里香都轻法中古风-业主需求
本案业主是一对新婚小夫妻,追求静谧、温暖富有格调的生活空间
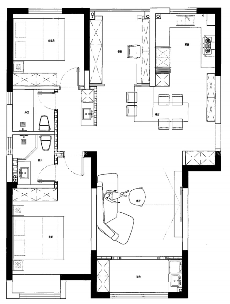
平面布置图
116平七里香都轻法中古风-平面布置图
本案在平面布局上,打通北阳台作为书房,在功能上合理优化布局,卫生间干湿分离。
3D全景图
116平七里香都轻法中古风-3D全景图图标 116平七里香都轻法中古风全景图封面图
空间效果图
116平七里香都轻法中古风-空间效果图
本案为轻法中古风,以米白色+胡桃木色为主,奠定温润沉静的基调。客厅背景墙均以经典的法式角花设计,摆放胡桃木成品矮柜和奶白色布艺沙发,在经典法式韵律中勾勒出中古风骨架。
116平七里香都轻法中古风-空间效果图
餐厅延续客厅的基调,岛台设计既满足用餐又起到了区域分隔作用,藤面与黑色金属框架的餐椅,极具中古格调。
116平七里香都轻法中古风-空间效果图 116平七里香都轻法中古风-空间效果图
116平七里香都轻法中古风-空间效果图 116平七里香都轻法中古风-空间效果图
116平七里香都轻法中古风-空间效果图
116平七里香都轻法中古风-空间效果图
#  其他  116m²    效果图  #
该案例设计师
金螳螂家装修设计师张婷
张婷
设计经验 10年以上
更多设计案例
172
不喜欢
猜你喜欢
关闭
按此效果装修多少钱?
电话咨询 在线咨询 算算我家报价
按此效果装修多少钱?
按此效果装修多少钱?
更多相似风格效果
按此效果装修多少钱?
更多相似风格效果
按此效果装修多少钱?
更多相似风格效果
按此效果装修多少钱?
更多相似风格效果
按此效果装修多少钱?
更多相似风格效果
按此效果装修多少钱?
更多相似风格效果
按此效果装修多少钱?
更多相似风格效果
按此效果装修多少钱?
更多相似风格效果
按此效果装修多少钱?