首页 > 裝修案例 > 337 平复式九如意新亚洲风格

337 平复式九如意新亚洲风格

风格:其他 面积:337m² 户型: 小区: 九如意
业主需求
337 平复式九如意新亚洲风格-业主需求
整体户型是比较方正且布局分区合理。
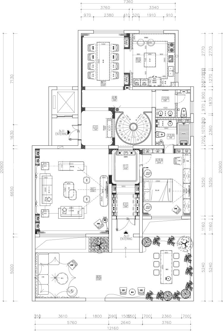
平面布置图
337 平复式九如意新亚洲风格-平面布置图
在原始户型不变的基础上,去考虑各个空间的储藏、色彩搭配、材质满足等需求
空间效果图
337 平复式九如意新亚洲风格-空间效果图 337 平复式九如意新亚洲风格-空间效果图 337 平复式九如意新亚洲风格-空间效果图
透过玄关透景看到楼梯若隐若现,透景之美,空间雅物,陈设有法。文志之士与素雅之器相伴,将自身心性寄托其中。 挑空客厅直达高远的山水之境,竖向纹理的木饰面从地面攀至穹顶,背景墙两侧微扬的飞檐式收边,既是对“山势欲飞”的抽象提纯,亦成为光的导流板——晨光斜切时,木纹如琴弦震颤;暮色沉降时,阴影在墙面晕染出深浅墨韵
337 平复式九如意新亚洲风格-空间效果图 337 平复式九如意新亚洲风格-空间效果图
以光为呼应,吧台区以红酒架与灯带的结合,为空间带来阵列式的几何秩序。 将自然与人居的共生关系写入更多空间。通往负一层的楼梯就因对自然的礼赞而成,转角处的仿真树随人走动亦会摇曳,橘色光晕自球状灯具中渲染开去,温暖着这处自然光很难抵达的角落。
337 平复式九如意新亚洲风格-空间效果图
#  其他  337m²    效果图  #
145
不喜欢
猜你喜欢
关闭
按此效果装修多少钱?
电话咨询 在线咨询 算算我家报价
按此效果装修多少钱?
按此效果装修多少钱?
更多相似风格效果
按此效果装修多少钱?
更多相似风格效果
按此效果装修多少钱?
更多相似风格效果
按此效果装修多少钱?
更多相似风格效果
按此效果装修多少钱?
更多相似风格效果
按此效果装修多少钱?
更多相似风格效果
按此效果装修多少钱?