首页 > 裝修案例 > 102平金悦文华现代简约风格

102平金悦文华现代简约风格

风格:现代简约 面积:102m² 户型: 小区: 越秀金悦文华
业主需求
102平金悦文华现代简约风格-业主需求
整体户型是比较方正且布局分区合理。
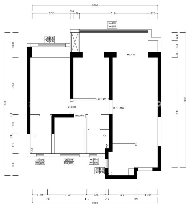
平面布置图
102平金悦文华现代简约风格-平面布置图
在原始户型不变的基础上,去考虑各个空间的储藏、色彩搭配、材质满足等需求,实现三个卧室正常居住,美观两者兼得。
空间效果图
102平金悦文华现代简约风格-空间效果图
进门鞋柜餐边柜和电视柜,满足储物的同时,空间有很简单干净温馨
102平金悦文华现代简约风格-空间效果图 102平金悦文华现代简约风格-空间效果图
冰箱在厨房外面餐厅旁边,既方便了使用,又能增加厨房的储物。
102平金悦文华现代简约风格-空间效果图 102平金悦文华现代简约风格-空间效果图 102平金悦文华现代简约风格-空间效果图
主卧L型的衣柜增加卧室储物的同时,有很好的把卫生间和主卧形成了隔断 考虑到孩子房间的成长性,书桌和衣柜一体衔接成型,功能和实用兼顾 简单的大地色系搭配,让卧室显得温馨又干净。
#  现代简约  102m²    效果图  #
100
不喜欢
猜你喜欢
关闭
按此效果装修多少钱?
电话咨询 在线咨询 算算我家报价
按此效果装修多少钱?
按此效果装修多少钱?
更多相似风格效果
按此效果装修多少钱?
更多相似风格效果
按此效果装修多少钱?
更多相似风格效果
按此效果装修多少钱?
更多相似风格效果
按此效果装修多少钱?
更多相似风格效果
按此效果装修多少钱?
更多相似风格效果
按此效果装修多少钱?