首页 > 裝修案例 > 164平万达西地现代风格-享受自由

164平万达西地现代风格-享受自由

风格:现代简约 面积:164m² 户型: 小区: 万达西地
业主需求
164平万达西地现代风格-享受自由-业主需求
原四室两厅一厨两卫两阳台的户型改成两室去做,书房做开放式,空间越通透越好,风格要求现代简约风格,墙面颜色选用白色为主
平面布置图
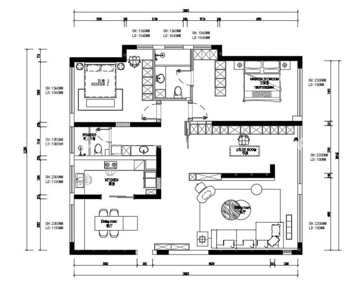
164平万达西地现代风格-享受自由-平面布置图
融入自然景观的天地馈赠,增加开放格局,让空间更加通透轻盈。
空间效果图
164平万达西地现代风格-享受自由-空间效果图 164平万达西地现代风格-享受自由-空间效果图 164平万达西地现代风格-享受自由-空间效果图
客厅电视背景墙简约大方,留白让光阴赋予他无限想象无主灯增加层次氛围感,让人随心所欲,自由热情的生活。
164平万达西地现代风格-享受自由-空间效果图
餐厅在满足实用的功能性前提下,建立秩序,让整体布局井然有序,让年轻人爱上做饭,爱上生活,足够的收纳空问,避免入住后杂乱烦心。
164平万达西地现代风格-享受自由-空间效果图
3、主卧简单的背景造型设计,让整个空问不在单调。原木色的地板让空间增加了几许温馨。简单的筒灯代替了主灯照亮整个空问,无主灯的设计让层高不在压抑。
164平万达西地现代风格-享受自由-空间效果图
书房亦是休闲空间,办公休闲二合一,闲时翻阅书籍,亦或窗外发呆,微风拂面,宁静致远。
#  现代简约  164m²    效果图  #
193
不喜欢
猜你喜欢
关闭
按此效果装修多少钱?
电话咨询 在线咨询 算算我家报价
按此效果装修多少钱?
按此效果装修多少钱?
更多相似风格效果
按此效果装修多少钱?
更多相似风格效果
按此效果装修多少钱?
更多相似风格效果
按此效果装修多少钱?
更多相似风格效果
按此效果装修多少钱?
更多相似风格效果
按此效果装修多少钱?
更多相似风格效果
按此效果装修多少钱?